Содержание
Чертеж зоны текущего ремонта автомобилей на 2 рабочих поста на СТО
Строительные требования:
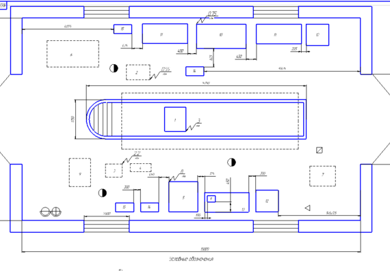
Место расположения зоны текущего ремонта (ТР) выбрано из условия, что в ней выполняется больший объем работ, поэтому требует большего освещения. Сетка колонн – четырехугольник с шагом колонн 6 метров и пролетом 12 метров. Колонны имеют прямоугольную форму 600х600 мм. Высота помещения – 6 метров. Окна по высоте – 2,0 метра, по ширине – 3,0 метра, окна с одним переплетом, однотипные.
Санитарно – технические требования:
Обеспечение гигиены и безопасности труда требует определенных размеров и планирования производственных зданий и рабочих помещений. Основным нормативным актом регламентирующим требования к устройству и содержанию производственных помещений являются санитарные нормы проектирования промышленных предприятий (СН-245-63).
Санитарными нормами установлено, что объем производственного помещения на каждого работающего должен составлять не менее 15 м3, а площадь каждого производственного помещения не менее 4,5 м2 на каждого работающего.
Высота производственных помещений от пола до потолка – 6 м, а помещений энергетического и транспортно-складского хозяйства – не менее 3 м, при этом высота помещений от пола до низа выступающих конструкций и элементов покрытия или перекрытия должна быть не менее 2,6 м. Одноэтажные здания со значительными площадями бокового остекления и покрытия, выполненные из стекложелезобетона, обладают рядом преимуществ по обеспечению высокого уровня естественной освещенности в помещениях и хорошей вентиляции.
Организация технологического процесса должна обеспечивать соблюдение предельно допустимых вредных примесей в воздухе рабочей зоны. Превышение их не допускается.
Соблюдение предельно допустимых концентраций должно достигаться в первую очередь путем соответствующей организации технологических процессов и рационализации оборудования; обеспечение непрерывности производственных процессов; комплексной механизацией и автоматизацией производственных действий; комплексной механизацией и автоматизацией производственных операций с автоматическим или дистанционным контролем и управлением; полной герметизацией оборудования, коммуникацией, с очисткой выбросов; конструктивными встроенными отсосами; заменой сухих способов переработки материалов, пылящих мокрыми и т.
п.
Системы отопления производственных зданий должны обеспечивать равномерный нагрев воздуха в помещении, возможность центрального и местного регулирования и исключения, находиться в зависимости с системой вентиляции, не создавать чрезмерного шума, не быть источником загрязнения воздуха, обеспечивать удобство эксплуатации, доступность для ремонта и обслуживания, а также учитывать перспективу развития производства.
При устройстве систем центрального отопления следует наивысшую температуру нагревательных устройств принимать не выше 130° для водяного отопления и не выше 110° в системах парового отопления. Все нагревательные приборы с температурой поверхности свыше 90°, расположенные в доступных прикосновениях, должны снабжаться предохранительными экранами, чтобы избежать случайных ожогов.
Поддержка предприятия в чистоте повышает культуру производства, способствует снижению производственного травматизма, общей и профессиональной заболеваемости. Рабочие места, проходы, проезды не должны загромождаться.
Пределы проходов и укладочных площадок обозначают хорошо видимыми белыми линиями шириной не менее 50 мм.
Организация работы зоны текущего ремонта комплекса текущего ремонта АТП г.Красноярска
ГБОУ СПО «Савеловский
«колледж
Специальность 190604 «Техническое
обслуживание и ремонт автомобильного
транспорта»
Пояснительная записка
к Курсовому проекту
Вариант
№ 1
Разработать проект
на тему : «Организация работы зоны
текущего ремонта комплекса текущего
ремонта АТП г.Красноярска».
выролнил: Мельников И.О
Рецензент:Камшилина Г.Б
Принял: Камшилина Г.Б.
Кимры 2013
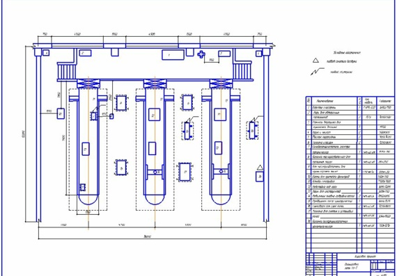
Организация работы агрегатного участка
комплекса ремонтных работ
Задание
на проектирование
Разработать
проект на тему «Организация работы, агрегатного
участка
комплекса ремонтных
участков АТП г.
Красноярска.»
Задание на проектирование:
1. Провести технологический расчет
производственных подразделений комплекса
РУ.
2. Выбрать и обосновать
метод организации производства
комплекса РУ и
агрегатного участка.
3. Провести подбор технологического
оборудования и оснастки на
агрегатном
участке.
4. Составить операционную (технологическую)
карту на ремонт передней
рессоры автомобиля КамАЗ-55111.
5. Разработать требования
по обеспечению безопасных приемов
труда на
объекте проектирования.
6. Выполнить планировочный чертеж
зоны ТР.
ИСХОДНЫЕ ДАННЫЕ
|Марка автомобиля
|Пробег с начала
|Количество автомобилей, |
|
|эксплуатации в долях
|ед.
|
|
|от LКР
|
|
|КамАЗ-55111
|Менее 0,5
|А1=15
|
|
|0,5-0,75
|А2=55
|
|
|0,75-1,0
|А3=65
|
|
|более 1,0
|А4=45
|
|ВСЕГО:
|А=180
|
АКР=20 — количество
автомобилей, прошедших КР, ед.
;
LCC=212 – среднесуточный пробег автомобилей,
км;
IV- категория условий эксплуатации;
ДРГ=305- количество
рабочих дней в году АТП, дн.;
t П – 10,1 – средняя продолжительность
работы автомобилей на линии;
t ВК =6 ч 30 мин – время начала выхода
автомобилей на линию;
t ВН=8 ч – время конца выхода автомобилей
на линию.
1. ВВЕДЕНИЕ
Увеличение количества
автомобилей, а также совершенствование
их конструкций требуют
увеличения числа сервисных станций
по их обслуживанию и ремонту. На сегодняшний
день многие станции и мастерские
по ремонту автомобилей имеют узкоспециализированную направленность.
Для наиболее полного удовлетворения
потребностей населения требуется расширение
универсальных станций и мастерских технического
обслуживания и ремонта автомобилей. Наличие
в эксплуатации автомобилей различных
моделей и модификаций разных лет выпуска
требует от работников автомобильного
предприятия знания, как конструктивных
особенностей автомобилей, так и принципов
взаимозаменяемости отдельных узлов и
агрегатов.
Существенным в обеспечении
качества выполнения работ является предельно
допустимых величин, обеспечивающих нормальную
эксплуатацию, и ремонтных размеров. Сложные
конструкции узлов и агрегатов могут быть
качественно отремонтированы только при
использовании специального инструмента
и приспособлений.
В процессе эксплуатации автомобиля его
надежность и другие свойства постепенно
снижаются вследствие изнашивания деталей,
а также коррозии и усталости материала,
из которого они изготовлены. В автомобиле
появляются различные неисправности,
которые устраняют при техническом обслуживании
и ремонте.
Известно, что создать
равнопрочную машину, все детали которой
изнашивались бы равномерно и имели
одинаковый срок службы — невозможно. Следовательно,
ремонт автомобиля даже только путем
замены некоторых его и агрегатов, имеющих небольшой ресурс, всегда целесообразен
и с экономической точки зрения оправдан.
Поэтому в процессе эксплуатации автомобили
походят в автотранспортных предприятиях
периодическое техническое обслуживание
и при необходимости текущий ремонт, который
осуществляется путем замены отдельных
деталей и агрегатов, отказавших в работе.
Это позволяет поддерживать автомобили
в технически исправном состоянии.
При длительной эксплуатации
автомобили достигают такого состояния,
когда затраты средств и труда,
связанные поддержанием их в работоспособном
состоянии в условиях автотранспортных
предприятии, становятся больше прибыли,
которую они приносят в эксплуатации.
Такое техническое состояние автомобилей
считается предельным, и они направляются
в капитальный ремонт на авторемонтные
предприятия.
Задача капитального
ремонта состоит в том, чтобы
с наименьшими затратами
утраченную автомобилями работоспособность.
Капитальный ремонт автомобилей
имеет большое экономическое
и, следовательно, народнохозяйственное
значение. Основным источником экономической
эффективности капитального ремонта автомобилей
является использование остаточного ресурса
их деталей. Около 70 — 75% деталей автомобилей,
прошедших срок службы до первого капитального
ремонта, имеют остаточный ресурс и могут
быть использованы повторно либо без ремонта,
либо после небольшого ремонтного воздействия.
Все детали с поступающих
капитальный ремонт автомобилей
можно разбить на три группы. К
первой группе относятся детали, которые
полностью исчерпали свой ресурс и при ремонте автомобиля должны
быть заменены новыми.
Количество таких деталей
сравнительно невелико и составляет
25 — 30%.К деталям этой группы относятся
поршни, поршневые кольца, вкладыши
подшипников, различные втулки, подшипники
качения, резинотехнические изделия и др.
Вторая группа деталей,
количество которых достигает 30 — 35%,
это детали, ресурс которых позволяет
использовать их без ремонта. К этой
группе относятся все детали, износ
рабочих поверхностей которых находится
в допустимых пределах.
К третьей группе деталей относятся остальные
детали автомобиля (40 — 45%). Эти детали могут
быть использованы повторно только после
их восстановления. К этой группе относится
большинство наиболее сложных и дорогостоящих
базовых деталей автомобиля и, в частности,
блок цилиндров, коленчатый вал, головка
блока, картеры коробки передач и заднего
моста, распределительный вал и др.
Стоимость
восстановления этих деталей не превышает
10 — 50% от стоимости их изготовления.
Таким образом, основным
источником экономической эффективности капитального ремонта
автомобилей является использование остаточного
ресурса деталей второй и третьей групп.
Себестоимость капитального
ремонта автомобилей и их агрегатов
даже в условиях сравнительно небольших
современных предприятий обычно не превышает 60 — 70% от стоимости новых
автомобилей. При этом достигается большая
экономия в металлах и трудовых ресурсах.
Капитальный ремонт автомобилей позволяет
также поддерживать на высоком уровне
численность автомобильного парка страны.
Авторемонтное производство в нашей стране непрерывно
развивается и совершенствуется. Проводимый
в настоящее время курс на сосредоточение
капитального ремонта автомобилей в сосредоточение
капитального ремонта автомобилей в производственных
объединениях автомобильной промышленности
позволит укрупнить и специализировать
предприятия.
На крупных специализированных
авторемонтных предприятиях создаются
условия для широкого применения
наиболее совершенных технологических
процессов, современного оборудования,
средств механизации и автоматизации. Это генеральное
направление в развитие авторемонтного
производства приведет к резкому повышению
качества капитального ремонта автомобилей
и наиболее полной реализации его экономических
преимуществ.
Огромное внимание в
нашей стране подготовке специалистов по ремонту автомобилей.
В настоящее время функционирует большое
количество автотранспортных и автодорожных
колледжей и техникумов, которые выпускают
специалистов по техническому обслуживанию
и ремонту автомобилей, высших учебных
заведений, готовящих молодые инженерные
кадры высшей квалификации.
В 1930г. был организован
Московский автомобильно-дорожный институт,
с кафедрой производства и ремонта
автомобилей. На сегодняшний день высшие
учебные заведения во всех концах
России готовят специалистов для работы в данной области
промышленности.
Из ряда наиболее образованных
и увлеченных студентов создана большая
армия аспирантов, которые постоянно пополняют
научный потенциал нашей страны, становясь
кандидатами в доктора технических наук
и докторами технических наук. Потребность
в систематизации и углублении знаний
о ремонте автомобилей значительно повышает
роль научных исследований в этой области.
Замечательно еще и
то, что престиж технического образования
в нашей стране продолжает расти.
А это говорит о том, что потребность в технических
специалистах уже сегодня высока.
2. ХАРАКТЕРИСТИКА
ПРЕДПРИЯТИЯ И ОБЪЕКТА ПРОЕКТИРОВАНИЯ
Характеристика
предприятия.
Автотранспортное предприятие, из
задания на курсовое проектирование,
располагается в Красноярской области.
АТП в данном случае является предприятием
комплексного типа, так как оказывает
сторонним организациям транспортные
услуги, связанные с перевозками грузов
различного характера и пассажиров, занимается
обслуживанием и ремонтом транспорта,
а также его хранением.
Подвижной состав предприятия представлен
грузовыми и легковыми
а также автобусами, то есть подвижной
состав является смешанным и состоит
из трех технологически совместимых
групп при производстве технического
обслуживания и текущего ремонта.
На балансе автохозяйства
предприятия числится 890 единиц техники,
из которых 300 единиц приходится на грузовые
автомобили марки КамАЗ — 55111, из
которых 28% имеют пробег с начала эксплуатации
40 тыс. км, 44% имеют пробег с начала эксплуатации
90 тыс. км и 28% имеют пробег с начала эксплуатации
130 тыс. км
Количество рабочих дней в году
для предприятия автомобильного
транспорта составляет 250 дней.
Подвижной состав предприятия эксплуатируется
в умеренной неагрессивной природно-климатической
зоне. Категория условий эксплуатации
для грузовых автомобилей следующая: в
первой категории эксплуатируется 5% подвижного
состава, во второй категории — 50% и в третьей
категории — 45%; для автобусов следующая:
в первой категории эксплуатируется 20%
подвижного состава, во второй категории
— 65% и в третьей категории — 15%; для легковых
автомобилей следующая: в первой категории
эксплуатируется 15% подвижного состава,
во второй категории — 60% и в третьей категории
— 25%.
Время работы подвижного состава на
линии составляет 10 часов в сутки.
Время выхода автомобилей на линию
в 7 часов, время ухода автомобилей
с линии — в 17 часов.
Характеристика объекта
Объектом проектирования, из задания
на курсовое проектирование, является
зона ТР. Зона ТР предназначена для уменьшения
времени на проведение технического обслуживания
и ремонта. Диагностирование, являясь
подсистемой информации для управления
производством, одновременно является
элементом самой системы технического
обслуживания и текущего ремонта
(в основном выделяется из технического
обслуживания) и подсистемой контроля
качества выполненных работ и
технического состояния автомобилей
не только на автотранспортном предприятии,
но и за пределами. В связи с возможностью
определения неисправностей без разборки
они при регулярном диагностировании
выявляются до наступления отказа, что
позволяет планировать их устранение,
предотвращает прогрессирующе изнашивание
деталей и снижает общие расходы на техническое
обслуживание и текущий ремонт.
Диагностика
способствует также уменьшению расхода
топлива и загрязнения окружающей среды,
повышению безопасности движения, технической
готовности автомобильного парка и других
технико-экономических показателей его
использования.
Диагностирование является комплексом
мероприятий по оценке и определению
технического состояния автомобиля,
а также отдельных его систем,
узлов и агрегатов без
по внешним признакам, путём измерения
величин (параметров), характеризующих
его состояние, с помощью различных
стендов и приборов и сопоставления их
с нормативами. В зоне диагностики выполняются
следующие основные виды работ: проверка
технического состояния автомобиля в
целом, двигателя и системы электрооборудования,
сцепления, трансмиссии, ходовой части
и рулевого управления, тормозной системы,
светоосветителной аппаратуры и контрольно-измерительных
приборов на самом автомобиле. Также в
зоне диагностики проводят необходимые
регулировочные работы.
Секрет во всех областях — математика с плохими чертежами
(за исключением области 51, которую я не уполномочен разглашать)или, мир через прямоугольные очки
Теперь, когда я преподаю среднюю школу, Я ловлю себя на том, что борюсь с огромным количеством формул площади, которые мои ученики должны знать (или, по крайней мере, быть с ними поверхностно знакомы).
Прямоугольники, треугольники, параллелограммы, трапеции…
Логика такова: Горстка геометрических фигур постоянно повторяется в нашем мире. Как только вы узнаете, как их обнаружить, они повсюду, как Вильгельм Крик. Полезно легко определять размеры этих фигур с помощью формул.
Это все правда, насколько это возможно. Но сведение геометрии к одним только формулам может привести к трагическим недоразумениям, как, например, когда студент спросил моего друга: «Есть ли простой способ запомнить разницу между объемом и площадью поверхности?» Это все равно, что просить простой способ запомнить разницу между океанами и пустынями: вы можете спутать их, только если у вас есть глубокие неправильные представления о каждом из них.
Поэтому, когда я учу эти формулы, я пытаюсь напомнить себе элегантную истину: когда дело доходит до площади, все является прямоугольником.
И да, я имею в виду все .
Итак, начнем. С прямоугольниками найти площадь — это просто вопрос умножения.
В каждом прямоугольнике у вас есть небольшой массив квадратов:
В этом случае у нас есть массив 5 квадратных сантиметров на 3 квадратных сантиметра. Всего 15 квадратных сантиметров. Или, в более общем смысле: A = bh.
А как насчет треугольников ?
Ну, просто нарисуйте их внутри прямоугольников.
Обратите внимание, что мы можем разделить прямоугольник на две стороны. Треугольник заполняет половину левых сторон и половину правых. Так что это должна быть половина всей площади.
Далее: параллелограмм .
Обратите внимание, что вы можете отрезать одну сторону параллелограмма и переместить ее на другую сторону, получив…
…прямоугольник! Значит, его площадь равна площади прямоугольника.
Как насчет трапеции (или, как странно настаивают мои новые британские соседи, трапеция )? Это немного сложнее.
Один из способов: сложите трапецию и посмотрите, что получится: параллелограмм!
Площадь всего этого объекта, согласно нашей формуле параллелограмма, равна (b 1 + b 2 ) x h, но это в два раза больше.
Итак, делим на 2, чтобы получить ответ.
Кроме того, вы можете заметить, что у трапеции есть маленький прямоугольник, который помещается внутрь…
…и что трапеция, в свою очередь, помещается внутри большего прямоугольника:
Площадь меньшего прямоугольника b 1 h. Больший имеет площадь b 2 h. А трапеция находится ровно посередине между ними. Отсюда: та же формула площади!
Далее: запускаем воздушного змея !
Применив наш уже знакомый трюк, мы можем поместить змея внутри большего прямоугольника и заметить, что он заполняет ровно половину:
Отсюда наша формула: площадь d 1 d 2 /2.
А как насчет ромба ? Тот самый трюк!
Если вы вспомните, что квадрат является одновременно особым прямоугольником (поскольку все его углы равны) и особым ромбом (поскольку его стороны равны), вы увидите, что мы можем найти его площадь двумя способами.
:
Комбинируя эти две формулы, мы даже получаем крутой результат:
(И вам не нужно звонить Пифагору за помощью с доказательством.)
До сих пор мы ограничивались простыми формами с прямыми сторонами. Возможно, неудивительно, что их площади можно найти с помощью умного применения прямоугольников. Но как насчет чего-то более экзотического, менее прямоугольного?
А как насчет, скажем… круга ?
Сначала нарежьте круг, как пиццу. Затем переставьте ломтики в чередующемся порядке, чтобы получилась такая форма:
Это похоже на параллелограмм, верно? Он имеет «высоту» примерно r (радиус круга) и «основание» примерно πr .
(Примечание: если вы помните, длина окружности 2πr. Обратите внимание, что это основание составляет половину окружности. Это πr.)
Теперь нарежьте его еще мельче и повторите процесс. Что ты заметил?
Он выглядит еще больше как параллелограмм.
И в самом деле, он начинает выглядеть как прямоугольник.
Здесь вы можете проявить свое воображение. Представьте себе, что круг разрезается на все более и более тонкие кусочки, как одна пицца, которую делят между населением всего мира. Затем нарежьте его даже тоньше , чтобы на каждую мышь, лося и бактерию на Земле нашлось по кусочку. Затем нарежьте его еще мельче, чем или !
Что мы получим?
Чем тоньше мы нарезаем, тем ближе получается прямоугольник. И если бы вы могли представить, что разрезаете его на «бесконечные» кусочки — это невозможно, но потерпите меня, — вы бы получили идеальный прямоугольник.
Какова будет его площадь? Итак, основание умножить на высоту… что равно πr умножить на r… что равно πr 2 . Формула площади доказана! КЭД! (На латыни это означает «гейм, сет, матч».)
Хорошо. Итак, мы свели следующие фигуры к прямоугольникам:
Но я обещал вам, что все будут прямоугольниками.
И мы не все рассмотрели. Например, мы не нашли площади таких фигур:
Итак, что мы можем сделать? Что ж, мы можем попытаться оценить площадь такой фигуры с помощью одного прямоугольника, но мы не будем очень близки:
Тот, что сверху, слишком мал, а тот, что снизу, слишком велик. И мы понятия не имеем, насколько НАМНОГО больше — это не очевидная дробь.
Что делать, если прямоугольник не работает? Добавьте больше прямоугольников!
Лучше, но все равно не очень. А 8 прямоугольников?
Это выглядит ближе. И это указывает на закономерность: чем больше узких прямоугольников мы позволяем себе использовать, тем ближе мы подходим к истинной области.
Суммируйте все это с помощью некоторых уравнений, и вы получите объект, знакомый изучающим математику: интеграл!
Правильно: интеграл. Мы говорим о всемогущем математическом механизме для нахождения площади любой формы, в которую вы можете ввести уравнение.
И все это не что иное, как вооруженные прямоугольники.
Итак, пытаетесь найти область? Надень эти прямоугольные очки.
Нравится:
Нравится Загрузка…
Задачи, связанные с чертежом в масштабе с примерами решения
Ключевые понятия
- Чертеж в масштабе.
- Определите фактическую длину с помощью чертежей в масштабе.
- Используйте масштабные коэффициенты для решения задач с площадью.
- Воспроизведение чертежа в другом масштабе.
8.1 Решение задач, связанных с чертежами в масштабе
Чертеж в масштабе:
Чертеж в масштабе — это увеличенный или уменьшенный рисунок объекта, пропорциональный реальному объекту.
Решение:
На изображении есть два изображения домов, дом справа представляет собой уменьшенное изображение реального дома. Здесь нас просят найти высоту дома с левой стороны.
Масштаб здесь указан как 2 дюйма = 5 футов.
Мы определяем высоту фактического дома в футах, если его длина составляет 8,5 дюймов.
Используйте пропорцию, чтобы найти фактическую длину x острова.
5 / 2 = x / 8,5
Умножьте на 8,5 обе части уравнения.
5 / 2 × 8,5 =
x / 8,5 x 8,5 =
42,5 / 2 = x
x = 21,25 фута.
Таким образом, мы заключаем, что фактическая высота дома составляет 21,25 фута.
8.1.1 Найдите фактическую длину с помощью чертежа в масштабе
Пример 1: Эмили отправляется в путешествие. Она определяет расстояние, которое ей нужно преодолеть, используя карту. Масштаб на ее карте гласит: 1 дюйм = 40 миль. Она измеряет расстояние в 6 дюймов. Определить дальность поездки.
Решение: Мы видим, что масштаб на карте 1 дюйм = 40 миль.
Шаг 1: Используйте двойную числовую линию для обозначения расстояния отрисовки шкалы и фактического расстояния.
Шаг 2: Используйте пропорцию, чтобы найти фактическое расстояние x поездки.
40/ 1 = x / 6
Умножьте на 6 обе части уравнения.
40/1 × 6 = x6 × 6
40 × 6 / 1 = x
x = 240 миль.
Таким образом, мы делаем вывод, что Эмили планирует поездку на 240 миль.
Пример 2: Остров на чертеже имеет ширину 2,5 дюйма. Масштаб, используемый в чертеже, составляет 1 дюйм = 1,5 фута. Какова ширина острова?
Решение: Мы видим, что масштаб на чертеже 1 дюйм = 1,5 фута.
Шаг 1: Используйте двойную числовую линию для представления ширины чертежа шкалы и фактической ширины.
Шаг 2: Используйте пропорцию, чтобы найти фактическую ширину, пусть «x» будет шириной острова.
1,5 / 1 = x/ 2,5
Умножьте на 2,5 обе части уравнения.
1,5 /1 × 2,5 = х / 2,5 × 2,5
1,5 × 2,5 / 1 = х
х = 3,75
Следовательно, мы заключаем, что ширина острова составляет 3,75 фута.
8.1.2 Использование коэффициентов масштабирования для решения задач с площадями
Пример 1: Художник решает нарисовать на стене картину, изображенную ниже.
Он хочет увеличить картинку и использует масштаб 1 см = 5 ярдов, чтобы обобщить площадь, необходимую для ее рисования. Сколько площади ему нужно, чтобы нарисовать картину?
Решение: Используйте уравнение в форме y = kx, чтобы представить пропорциональное соотношение между длинами на чертеже в масштабе x и фактическими длинами y. Константа пропорциональности k является масштабным коэффициентом.
Шаг 1: Найдите фактическую длину L картины, используя заданную длину l.
L = k × l
L = 5 × 5
L = 25 ярдов.
Шаг 2: Найдите фактическую ширину W картины, используя заданную ширину w.
Ш = k × ш
Ш = 5 × 5
Ш = 25 ярдов.
Шаг 3: Вычислите площадь картины на стене
Площадь = произведение двух смежных сторон
Площадь = длина × ширина
Площадь = 25 × 25
Площадь = 625 квадратных ярдов .
Следовательно, мы заключаем, что площадь стены, необходимая для завершения росписи, составляет 625 квадратных ярдов.
Пример 2: Определите площадь в квадратных ярдах сада в форме треугольника, представленного на чертеже в масштабе.
Решение: Используйте уравнение в форме y = kx, чтобы представить пропорциональное соотношение между длинами на чертеже в масштабе x и фактическими длинами y. Константа пропорциональности k является масштабным коэффициентом.
Шаг 1: Найдите фактическое основание B треугольника, используя заданное основание b.
B = k × b
B = 2 × 4,5
B = 9 ярдов.
Шаг 2: Найдите фактическую высоту H треугольника, используя заданную высоту h.
H = k × h
H = 2 × 6
H = 12 ярдов.
Шаг 3: Рассчитайте площадь сада в форме треугольника.
Площадь треугольника =
1/2 × основание × высота
Площадь треугольника =
1/2 × 9 × 12
Площадь треугольника =
1 × 9 × 1/2 × 9 × 12 2
Площадь = 108/2
Площадь = 54 квадратных ярда.
Таким образом, мы заключаем, что площадь сада в форме треугольника составляет 54 квадратных метра.
8.1.3 Воспроизведение чертежа в другом масштабе
Пример 1: Чертеж ниже имеет масштаб 1 единица = 4 см. Воспроизведите рисунок в масштабе 1 единица = 12 см и вычислите его площадь.
Решение:
Шаг 1: Найдите фактическую длину L, используя длину l на чертеже в масштабе.
Фактическая длина L = k × x
L = 9 × 4
L = 36 сантиметров.
Шаг 2: Найдите фактическую ширину W, используя ширину на чертеже в масштабе
Фактическая ширина W = k × x
W = 6 × 4
W = 24 сантиметра.
Шаг 3: Найдите новый масштаб чертежа.
Возьмите любое измерение. В этом случае возьмем длину.
36 см × 1 шт. / 12 см
= 36 шт. / 12
3 шт.
24 см × 1 шт. / 12 см
= 36 шт.
/ 12
2 шт.
Таким образом, воспроизведенный чертеж будет иметь размеры 3 на 2 единицы.
Пример 2: На чертеже в масштабе показан существующий коровник. Они хотят, чтобы длина амбара составляла 5 дюймов. Какими будут новые масштабы и ширина сарая?
Решение:
Шаг 1: Найдите фактическую длину L и фактическую ширину W коровника.
Определите коэффициент масштабирования, используемый для представления чертежа.
Фактическая длина L = k × x
L = 100 × 200
L = 2000 метров.
Фактическая ширина W = k × x
W = 100 × 10
W = 1000 метров.
Шаг 2: Найдите новый масштаб для амбара в реальном амбаре.
2000 метров / 5 дюймов = 400 метров / 1 дюйм
Новый масштаб 1 дюйм = 400 метров означает, что 1 дюйм на чертеже равен 400 метрам реального коровника.
Шаг 3: Найдите ширину, используя новый масштаб.
Вт = k × w
1000 = 400 × w
1000 = 400 × w
ш = 2,5 дюйма.
Размеры нового чертежа будут 5 дюймов на 2,5 дюйма.
Упражнение:
- Александр чертит схему здания на бумаге размером 8 дюймов. Если используется масштаб 1 дюйм = 100 футов, определите фактическую высоту здания.
- Если расстояние на карте равно 2 см = 50 метров. Что такое масштабный коэффициент?
- В упомянутом масштабе карты 1 см = 22 мили. Если расстояние между Хагерстауном и Аннаполисом указано на карте как 6 см. Найдите расстояние между двумя точками.
- Какова площадь в квадратных футах, если на чертеже в масштабе изображен ромб размером 3 дюйма. Используемая шкала: 1 дюйм = 3 фута.
- Определите площадь игровой площадки размером 10 см на 8 см, показанную на чертеже, если 1 см равен 24 футам.
- Какова площадь квадратного окна, сторона которого равна 0,75 дюйма, а масштаб, использованный на чертеже, равен 1 дюйму = 2 метрам?
- 40 миль на карте представлены 5-дюймовой линией.

